Barriere in ferro Modello Metropoli e Town

Questa serie di barriere in ferro di ispirazione classica utilizza come montanti i nostri dissuasori modello Metropoli o Town ed un sistema di fissaggio che permette l'installazione anche in perimetri circolari.

Sono disponibili soluzioni modulari da 1 metro o 1,5 m oltre alla soluzione su misura per rispondere ad una più ampia esigenza.

Barriere in ferro Modello Metropoli e Town:

Sistema di Fissaggio

per perimetri circolari

Queste barriere sono provviste di un sistema di fissaggio che ne permette l'installazione anche su perimetri circolari.

Questo particolare sistema rende le nostre barriere in ferro adatte a contesti urbani per la delimitazione di aree di qualsiasi forma.

Metropoli 100 - Town 100

in ghisa e ferro

Modelli modulari Metropoli 100 e Town 100 , la cui lunghezza è di 100 cm.

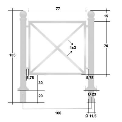
Schema tecnico

Metropoli 100

Dimensioni della barriera in ferro modello Metropoli 100.

Schema tecnico

Town 100

Dimensione della barriera in ferro modello Town 100.

Metropoli 100 - Town 150

in ghisa e ferro

Modelli modulari Metropoli 150 e Town 150 , la cui lunghezza è di 150 cm.

Schema tecnico

Metropoli 150

Dimensioni della barriera in ferro modello Metropoli 150.

Schema tecnico

Town 150

Dimensione della barriera in ferro modello Town 150.

Metropoli S.M. - Town S.M.

in ghisa e ferro

Modelli Metropoli S.M. e Town S.M., questi sono i modelli con misura a richiesta, secondo le esigenze di installazione dove modelli modulari da 100 o 150 non posso essere impiegati.

Schema tecnico

Metropoli S.M.

Dimensioni della barriera in ferro modello Metropoli S.M. la cui misura della barriera viene eseguir su richiesta.

Schema tecnico

Town S.M.

Dimensioni della barriera in ferro modello Town S.M. la cui misura della barriera viene eseguir su richiesta.

Finiture alternative che possono completare le barriere in ferro Metropoli e Town:

Le barriere in ferro possono essere personalizzate scegliendo una finitura alternativa a quella color ghisa antracite standard.
Vengono impiegati i colori a polvere termoindurenti indicati in fotografia.
Su richiesta possiamo anche valutare verniciature con colori non indicati a catalogo.

 

Puoi acquistare questi articoli anche on line, visita lo shop cliccando sul bottone. 

Torna su

Morelli S.a.s. di Morelli E. & C.
Via Mincio,13/A 40069 Zola Predosa (BO)
P.I. / C.F. 01947301204
Tel. 051.6414545

R.E.A. BO-400252
Iscr. Albo Artigiani n. 141719 del 20/07/2007
Iscr. Reg. Imp. di Bologna in data 15/02/1999 n. 01947301204

CHI SIAMO:

Il laboratorio artigiano MORELLI nasce a Bologna nel 1966.
Nei primi anni '90 quindi MORELLI si pone come azienda leader del settore dei complementi di arredamento in ghisa e ottone e ferro battuto.

Ad oggi il catalogo risponde alle numerose richieste dei clienti offrendo numerose tipologie di fontane da giardino in ghisa a stelo.
Completano la gamma le fontane da giardino con installazione a muro e una vasta gamma di rubinetti in ottone made in Italy.

L'ampia offerta di arredo giardino si completa con le cassette postali in ghisa ed alluminio, asole postali, illuminazione in ferro battuto, pulsantiere citofoniche anche su misura, oltre ai servizi dedicati ai condomini.